RIF. IMMOBILE ACV-A122

Descrizione

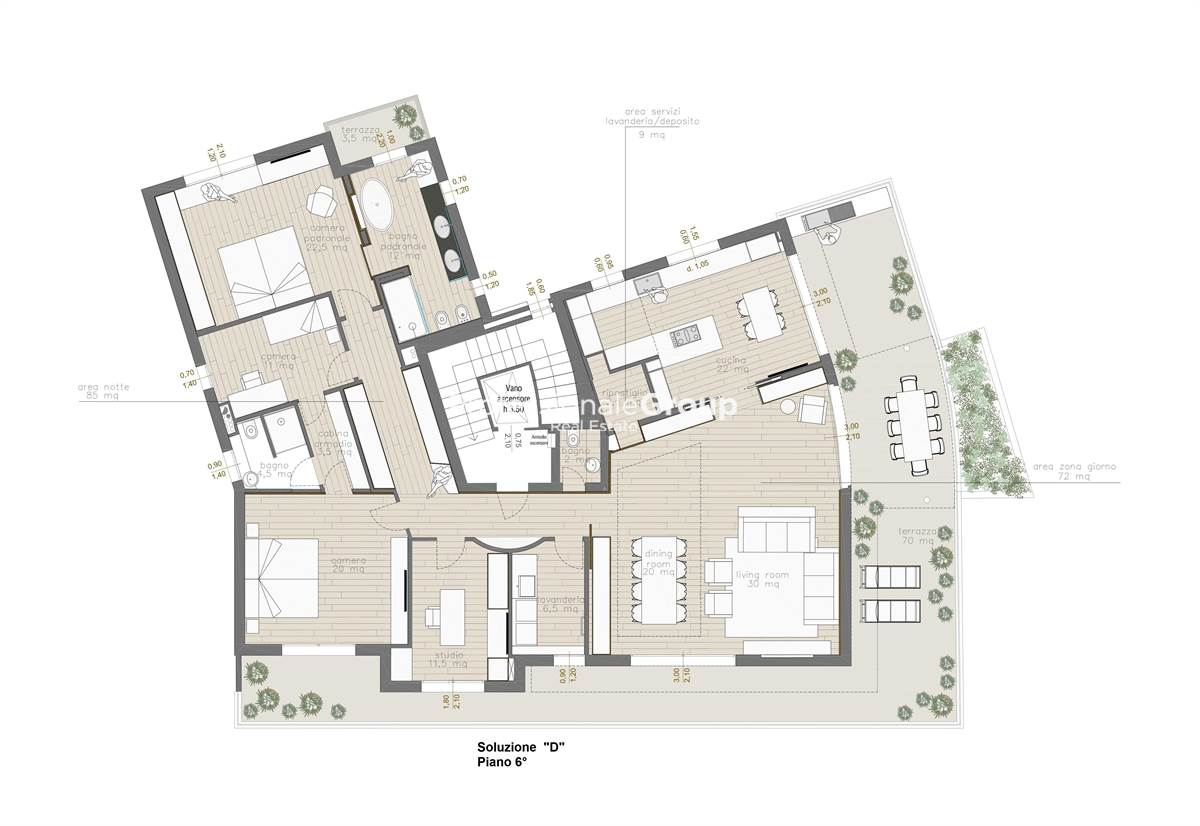
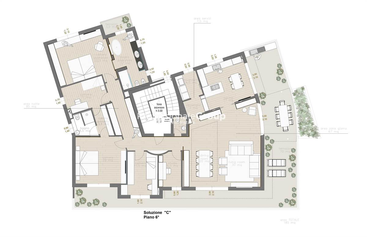
RIF. ACV-A122 - L'Agenzia Immobiliare PROFESSIONALE GROUP Real Estate, ha il piacere di proporvi in vendita questo ampio e luminoso Attico in signorile contesto residenziale, situato all’interno delle storiche mura della città. L’immobile fa parte di un edificio completamente ristrutturato con finiture di altissimo livello e la posizione favorevole del lotto permette di godere della vista privilegiata sul parco delle mura e sul centro storico cittadino, senza risentire della vicinanza degli edifici circostanti. Grande importanza è data allo spazio esterno, con il terrazzo che è uno spazio abitativo in continuità con l’interno dell’Attico. L’unità immobiliare beneficia di un’ampia metratura complessiva e di un’ottima distribuzione degli ambienti, sicuramente funzionali ad ogni tipo di esigenza abitativa. L’Attico è posto al piano 6° ed ultimo e gode di un’ottima esposizione in tutti e quattro i lati. La superficie complessiva si sviluppa in circa 300mq. L’ingresso vi accompagna in un’ampia zona living di oltre 50mq con cucina separata di circa 20mq, un ripostiglio, un bagno ed una lavanderia. Dalla zona giorno si ha accesso al meraviglioso terrazzo di circa 70mq. La zona notte è personalizzabile visti gli spazi generosi e può comporsi di un’ampia camera da letto matrimoniale con cabina armadio e bagno padronale, un’altra camera matrimoniale anch’essa con bagno padronale, un’ulteriore camera da letto doppia ed un bagno, oppure una camera da letto singola ed uno studio. Completano la proprietà al piano terra del fabbricato il garage pertinenziale doppio di circa 35mq, un ulteriore posto auto coperto ed una cantina. Soluzione ideale per chi è alla ricerca di un immobile signorile dall'ampia metratura. L'unità immobiliare è già provvista di porta di blindata, riscaldamento e raffreddamento a pavimento, generatore a pompa di calore, video citofono, impianto domotico, impianto fotovoltaico, pannelli solari, ascensore con accesso esclusivo al piano e finiture di pregio. CLASSE ENERGETICA A3. Lieti di fornirvi ulteriori informazioni in sede.

Grazie alla sua comprovata esperienza ventennale, Professionale Group rappresenta un solido intermediario per chi è alla ricerca di appartamenti, ville e case in vendita a Treviso.
Se siete alla ricerca di un'agenzia immobiliare pronta a guidarvi nella vendita della vostra proprietà, potete trovarci in Via Montello, 13

CONTATTA ADESSO IL NOSTRO CONSULENTE IMMOBILIARE DI RIFERIMENTO: RIF. IMMOBILE ACV-A122

Professionale Group
Real Estate
Via Montello, 13 - 31100 Treviso
T. 0422.41 23 40
info@professionalegroup.it
Vendere o comprare casa, una storia a lieto fine

Caratteristiche principali

Stato Immobile
Nuovo
Grado
Signorile
Posizione
Centro
Panorama
Vista Aperta
Orientamento
Nord Ovest Sud Est
Lati Liberi
4
Tipo Soggiorno
Doppio
Tipo Cucina
Abitabile
Riscaldamento
Autonomo
Tipo Riscaldam.
Pompa di Calore
Tipo Impianto
Pavimento
Fonte Energetica
Fotovoltaico
Acqua Calda
Autonoma a Pannelli
Raffrescamento
Pavimento
Infissi
Legno Triplo Vetro
Serramenti
Nuovo
Accessori: Antifurto, Aria Condizionata, Ascensore, Cancello Elettrico, Doppi Vetri, Fibra Ottica, Filo Diffusione, Impianto Domotica, Impianto Fotovoltaico, Impianto Satellitare, Lavanderia, Pannelli Solari, Porta Blindata, Ripostiglio, Tapparelle Elettriche, Video Citofono, Video Sorveglianza

Contatta adesso l'agenzia immobiliare

Invia
Professionale Group Real Estate
Cookie preference